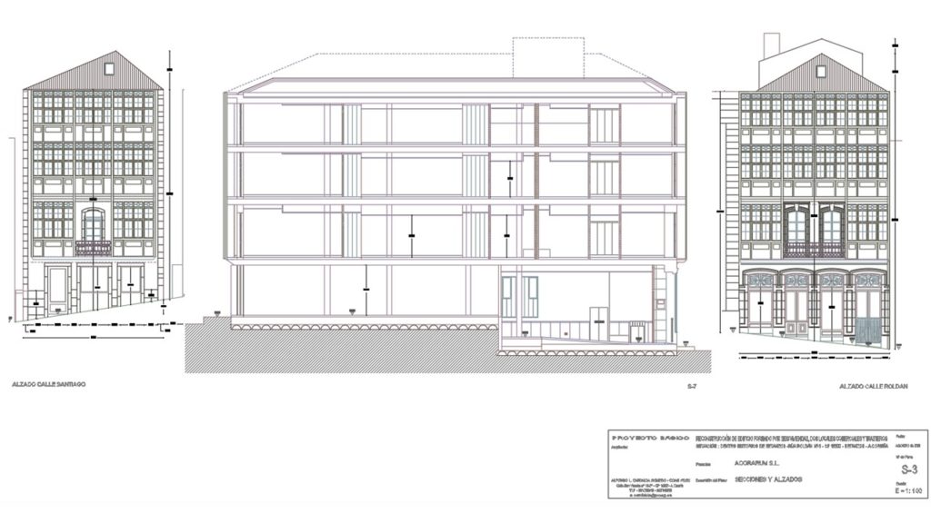
2006_Edificio en la calle Roldán, Betanzos.









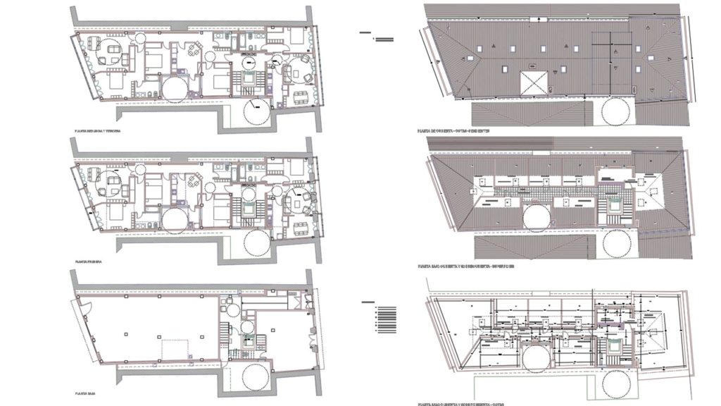
Reconstrucción de un edificio formado por: seis viviendas, dos locales comerciales y trasteros, en el nº1 de la calle Roldán, Betanzos.
Promotora Acorarum SL
Licencia de obras: septiembre 2006
Fin de obra: agosto de 2008

